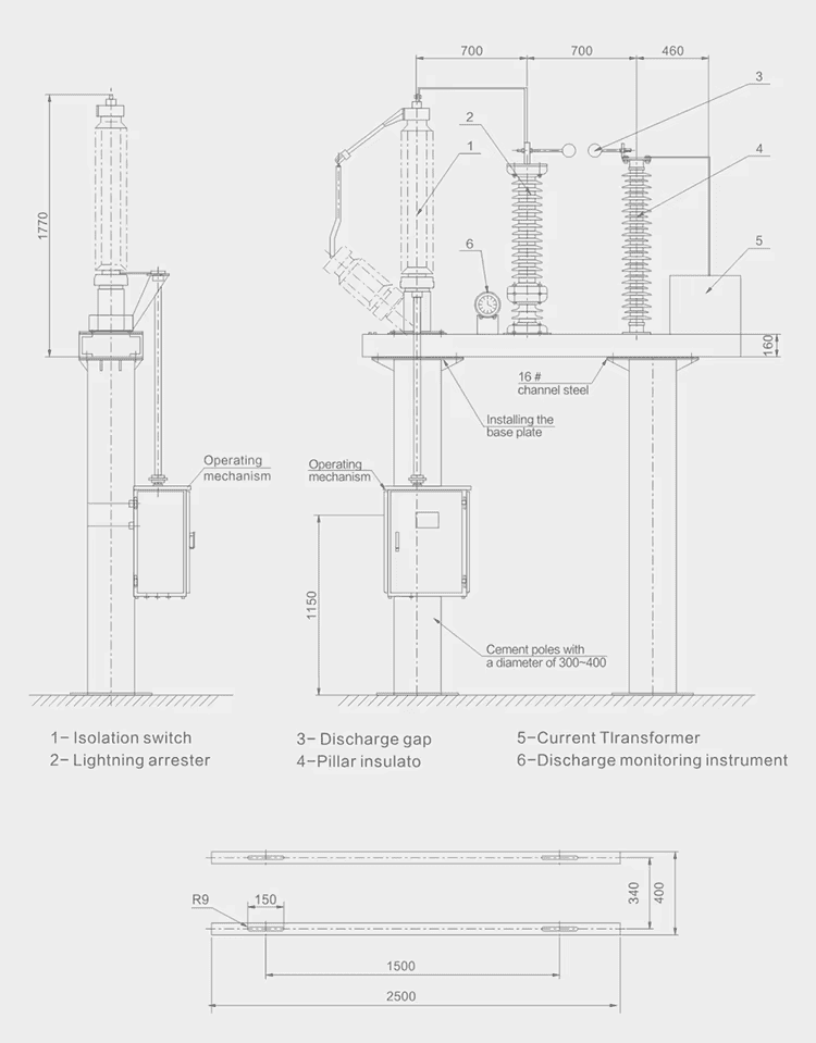
Tá gléas cosanta talún bearna pointe neodrach an claochladáin sraith GW13 a tháirgtear ag Lugao deartha chun insliú an phointe neodrach claochladán a chosaint ó overvoltage tintreach, róvoltas aistrithe agus minicíocht cumhachta (neamhbhuan) overvoltage. Tá trealamh táirgeachta gairmiúla agus taithí onnmhairithe saibhir ag Lugao, agus is féidir an fardal a shealbhaítear a sheachadadh go tapa.
Úsáidtear cosantóirí overvoltage pointe neodrach claochladáin sraith GW13 Lugao go príomha i gciorcaid phointe neodracha claochladáin chumhachta 110kV agus 220kV. Cosnaíonn siad insliú pointe neodrach an claochladáin ó dhamáiste róvoltais agus cuireann siad ar chumas an chlaochladáin aistriú idir modhanna oibríochta pointe neodrach bunaithe agus gan talamh. Nuair a bhíonn gá le cosaint comhuaineach i gcoinne tintreach, minicíocht chumhachta, agus overvoltages lascadh, is féidir bearna agus gabhálaí a nascadh go comhthreomhar le haghaidh cosanta. Is sraith iomlán é an cosantóir overvoltage pointe neodrach sraith GW13 a chomhtháthaíonn dínascaire, arrester ocsaíd since, bearna urscaoilte, agus claochladán reatha. Gnéithe sé cumas teirmeach ard agus cosaint den scoth, cumraíochtaí solúbtha, agus éasca le húsáid. Is féidir dearadh bearna íon nó meascán de dhínascaire agus bearna urscaoilte a roghnú chun freastal ar riachtanais úsáideoirí.
Sonraíochtaí Teicniúla Gléas cosanta GW13
| lt |
Aonad |
Argóint |
||
| Múnla táirge |
|
Lugao-gw13-110 |
Lugao-gw13-220 |
|
| Voltas rátáilte |
KV |
110 | 220 | |
| Claochladán neodrach sheasamh voltas |
Seasann tintreach iomlán agus gearrtha le voltas (buaic) |
KV |
250 | 400 |
| Minicíocht cumhachta 1min (luach éifeachtach) |
KV |
95 | 200 | |
| Lasc aonraithe neodrach |
Reatha rátáilte |
A | 630 | 630 |
| Meicníocht oibriúcháin |
|
CS14G(lámhleabhar) nó CJ2(leictreach) |
||
| Gabhálaí ocsaíd since |
Voltas rátáilte (RMS) |
KV |
72 | 144 |
| Voltas oibriúcháin leanúnach |
KV |
58 | 116 | |
| Voltas tagartha DC 1mA |
KV |
103 | 205 | |
| Voltas iarmharach de shruth impulse tintreach |
KV |
186 | 320 | |
| Bearna urscaoilte |
Raon achar leictreoid bhearna |
mm | 90-150 | 220-320 |
| Raon voltas urscaoileadh minicíochta cumhachta |
KV |
50-83 | 100-166 | |
| Voltas urscaoilte impulse 1.2/50us |
KV |
120-190 | 250-320 | |
| Trasfhoirmeoir reatha |
Cineál |
|
Doirteadh roisín eapocsa de chineál colún lán-iata 10kv |
|
| Cóimheas claochlaithe |
|
100/5,200/5,300/5.40015.50015.600/5 |
||
